
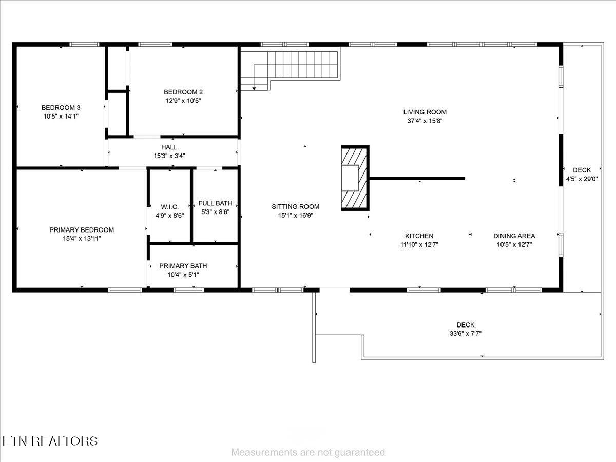
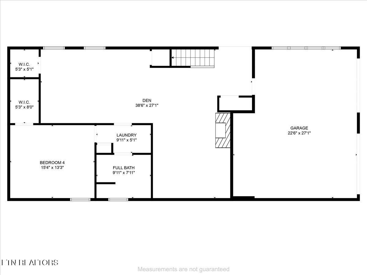
Seller paying $10,000 towards buyers closing cost or interest rate buy down! Modern, elegant and sophisticated is the way this home is being described. As you step into this mid-century modern West Knoxville home, you'll see that every inch of this place has been newly renovated with thoughtful design and attention to detail. The main floor consist of floor to ceiling windows allowing for plenty of natural light and are equipped with remote controlled window shades. Next you'll notice the enormous vaulted ceiling with exposed wooden beams and welcoming fireplace to gather round. The kitchen is nothing short of extraordinary with quartz countertops, white cabinetry with soft close features, stainless appliances, island with waterfall edge, and tile backsplash. As you cruise through this well designed floor plan you'll notice this home has the perfect flow, with 2 dining areas as well as multiple seating areas to fit your lifestyle. With 4 bedrooms and 3 full bathrooms, you'll have plenty of space to spread out. The large master bedroom has a walk-in closet and ensuite bath with floating vanity and custom walk-in tiled shower. The fully finished basement can be used as separate living quarters having its own living room with brick fireplace, dining area, bedroom and full bathroom. With this great location, you are within walking distance to everything, including shopping, grocery, churches and schools, or take the short ride to Hardin Valley, Farragut and Turkey Creek. Enjoy summer nights on the extended wrap around porch and entertain in style on the covered private patio. A fully fenced in backyard and professional landscaping put the finishing touches on your outdoor dining experience. Belmont West neighborhood offers Luxury, Lifestyle and Location. Make new friends and new memories by joining the neighborhood pool, which has numerous social events throughout the calendar year. Don't let this home pass you by, schedule your private showing today! This property has county taxes only, with Air BNB possibilities. Call today.
| MLS # | 1309149 |
|---|---|
| Listing Type | For Sale |
| Style | House |
| HOA Dues | $100 |
| Sub-Type | Resale |
| Status | Active |
| Year | 1968 |
| Days On Site | 111 |
| Listing Provided By | Tennessee Valley Realty Assoc | Michael Jenkinson |
| Bed(s) | 4 |
|---|---|
| Bath(s) | 3 Total |
| SQ Feet | 3,214 |
| Basement | Y |
| Acreage | 0.46 |
| Property View | Other |
| Rooms Total | 10 |
|---|---|
| Cooling Yes / No | Yes |
| Cooling | Central Cooling |
| Heating Yes / No | Yes |
| Heating | Central, Natural Gas, Electric |
| Interior Features | Walk-In Closet(s), Cathedral Ceiling(s), Kitchen Island, Pantry, Eat-in Kitchen |
| Window Features | Windows - Bay, Window - Energy Star |
| Appliances | Dishwasher, Disposal, Microwave, Range, Refrigerator |
| Exterior Features | Prof Landscaped, Balcony |
|---|---|
| Construction Materials | Wood Siding, Brick, Block, Frame |
| Lot Features | Private, Level |
| Attached Garage Yes / No | Yes |
|---|---|
| Parking Features | Garage Faces Side, Off-Street Parking, Garage Door Opener, Attached, Basement |
| Property | 2485 |
|---|
| State | TN |
|---|---|
| County | Knox County 1 |
| City | Knoxville |
| Zip Code | 37923 |
| Area | Knox County 1 |
| Subarea | 1 |
| Community Name | Belmont West S/D Unit 1 |
| School District | Hardin Valley Academy |
| Elementary School | Cedar Bluff Primary |
| High School | Hardin Valley Academy |
| State | TN |
|---|---|
| County | Knox County 1 |
| City | Knoxville |
| Zip Code | 37923 |
| Area | Knox County 1 |
| Subarea | 1 |
| Community Name | Belmont West S/D Unit 1 |
| School District | Hardin Valley Academy |
| Elementary School | Cedar Bluff Primary |
| High School | Hardin Valley Academy |